| Рубрика | Продава |
| Вид на имота | Къща |
| Населено място | с.Нови хан |
| Област: | София |
| Държава | Bulgaria - BG |
| Цена / Валута | 660000 EUR |
| Площ | 320 |
| Тип строителство | Тухла |
| Двор /м2/ | 680 |
| Етажност | 2 |
| Гараж | + |
Описание: Модерна двуетажна еднофамилна семейна къща
РЗП: 255.90 м2 | Парцел: 680 м2| 4 спални | 3 бани | Офис
Гараж - 50 м2
Закрито барбекю/механа - 19м2
Продава се новопроектирана двуетажна къща с модерна архитектура, изчистени линии и отлично вътрешно разпределение. Имотът е разположен в урбанизиран новоизграждащ се район между Нови хан и София, с бърз достъп до АМ Тракия и Цариградско шосе.
Локацията съчетава спокойствието на живота извън града с комфорта на бързата връзка до централните части на София.
Само на 20 минути от центъра на столицата, ще откриете тишина, простор, чист въздух, зеленина и усещане за свобода без да се отказвате от удобствата на града. Районът е подходящ за семейства, търсещи баланс между природа и достъпна инфраструктура.
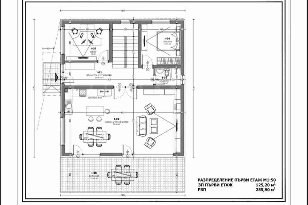
РАЗПРЕДЕЛЕНИЕ:
ПЪРВИ ЕТАЖ 125.20 м2:
Дневна / трапезария / кухня 54.80 м2
Панорамна остъклена дневна с камина, и предвидено място за голяма кухня с кухненски остров
Офис 12.25 м2
С френски прозорец, подходящ за работа на двама души
Спалня / кабинет/ домашен фитнес 12.10 м2
За гости, фитнес или допълнителна работна зона
Баня с тоалетна 3.30 м2
Входно антре и стълбище 21.90 м2
Подстълбищно помещение ~4 м2, предвидено за термопомпа за изграденото подово отопление и склад
Веранда 32.00 м2
ВТОРИ ЕТАЖ 130.70 м2:
Спалня 1 (Родителска спалня) 17.45 м2
Дрешник (към спалня 1) 6.15 м2
Втори дрешник (към спалня 1) 9.10 м2
Самостоятелна баня с тоалетна (към спалня 1) 4.70 м2
Спалня 2 14.70 м2
Спалня 3 13.70 м2
Обща баня/WC 5.00 м2
Мокро помещение 3.30 м2
Коридор и стълбище 13.70 м2
Тераса по цялата фасада 16.00 м2, обхващаща две от спалните
Допълнителна тераса 5.55 м2, с достъп само от едната спалня
Допълнителни постройки:
Гараж 50.00 м2, за две коли + складова зона
Закрито барбекю / механа 18.00 м2
Допълнителна информация:
Подготвена инсталация за подово отопление
Собствена пречиствателна станция, свързана с централната канализация
Подготвена инсталация за газификация
Възможност за зарядна станция за електромобил
Състояние:
Проектът е на етап очакване на разрешение за строеж, което предоставя идеална възможност за персонализация според нуждите и желанията на бъдещия собственик.
Предлага се опция за завършване до ключ.
Дом с мащаб, стил и функционалност готов да бъде адаптиран според индивидуалния вкус и нужди на новия си собственик. | |
| Номер на офертата | 1026713 |
| Дата на посл. промяна | Wed Nov 05 2025 |
| Брой посетители | 403 |
| За контакти: | Фирма: ФАЛКОН БИЛДИНГ Държава: Bulgaria Населено място: гр.София Адрес: Витоша 1 Телефони за контакт: 0894890924 E-mail: Builds.falcon@gmail.com |