| Рубрика | Продава |
| Вид на имота | Парцел |
| Населено място | гр.Бяла |
| Област: | Варна |
| Държава | Bulgaria - BG |
| Цена / Валута | 290000 EUR |
| Площ | 3160 |
| Лице /м./ | 40 |
| Регулация | + |
Описание: Бяла, парцел на 1ва линия море
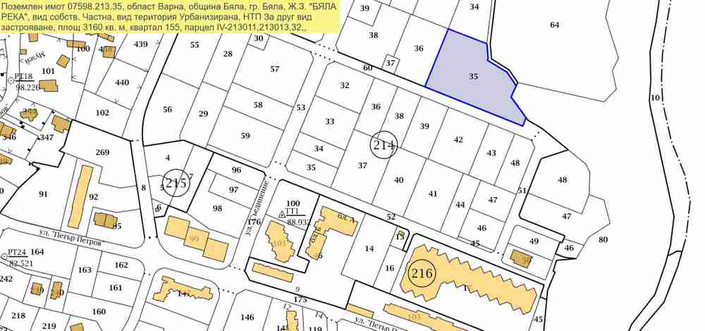
ПИ 07598.213.35 с площ 3 160 м2
в гр.Бяла, местност Глико.
Трайно предназначение на територията: урбанизирана
Проведена регулация 2008 г. с одобрен ПУП.
При подновяване на статута, платените такси при първата промяна се приспадат !
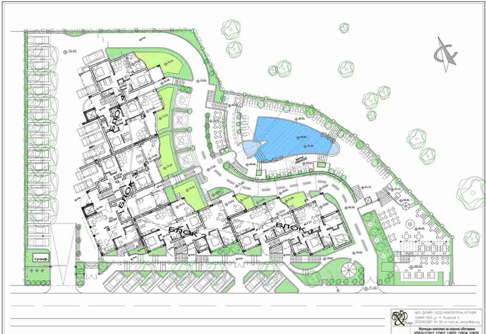
Одобрен проект за ваканционен комплекс от затворен тип.
Строително разрешение. (изтекло)
На първа линия море с изключителна гледка над морето.
Водопровод, канализация и електричество в близост до имота.
Подходящ за хотел, затворен тип комплекс или вилни къщи.
| |
| Номер на офертата | 1025219 |
| Дата на посл. промяна | Tue Jun 03 2025 |
| Брой посетители | 634 |
| За контакти: | Фирма: Н.И.БЪЛГАРИЯ ЕООД Държава: Bulgaria Населено място: гр.София Адрес: ул. Парчевич 45 Телефони за контакт: +359888220211 E-mail: ea@nordic.bg |